Magnifique 3 Pièces Rénové avec Terrasse

Suisse, Genève | Bouchet
Description
Référence:
22303
Pièces:
3
Nb de salles de bain: 2
Nb de chambres:
1
Type de surfaces:
94 m2
Vue:
Panoramique
Style:
Moderne
État:
Rénové
Prix parking:
CHF 200.-
Parking inclus:
En sus
Charges mensuelles:
CHF 200.-
Disponibilité:
15.02.2026
Description
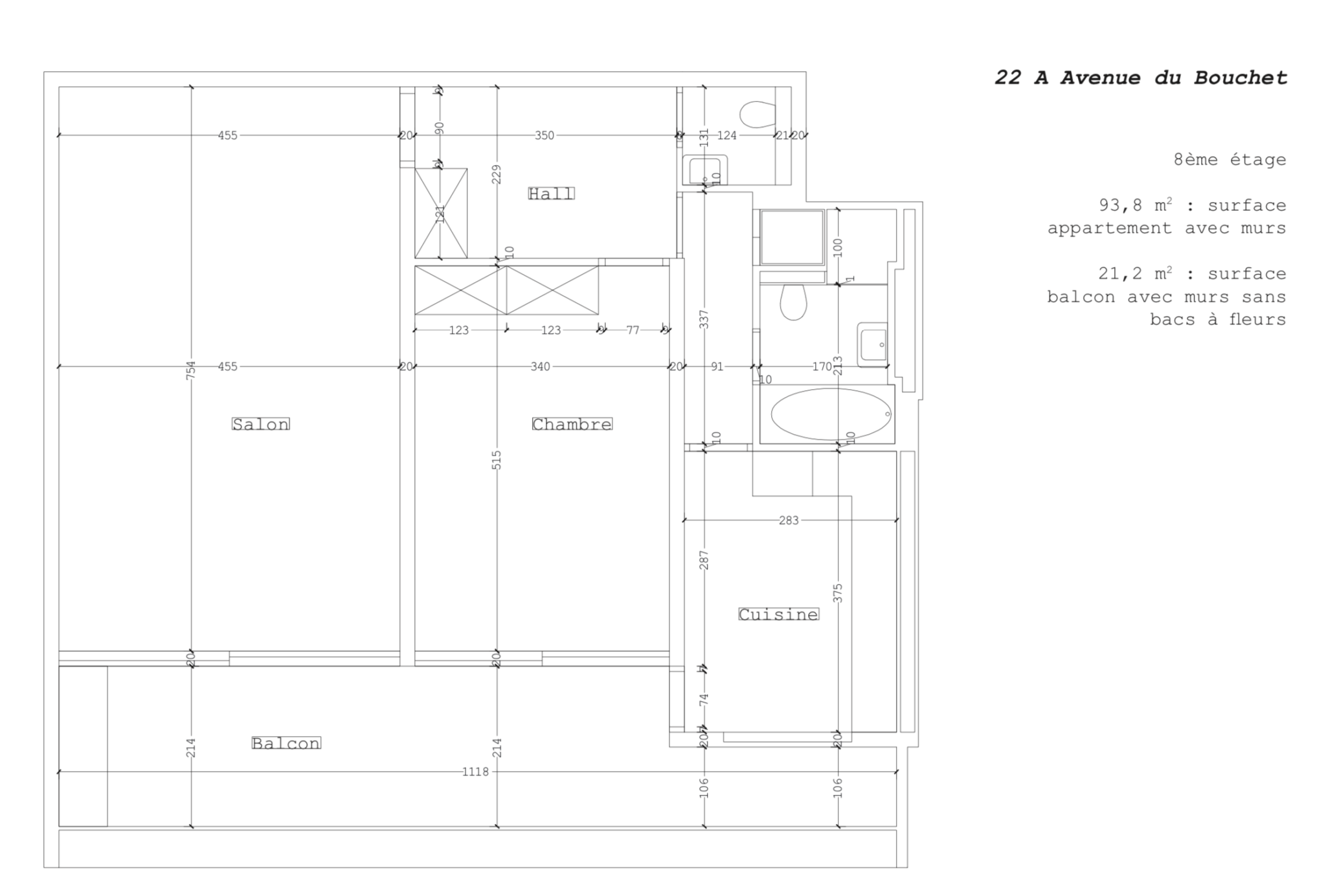
Situé au 8ème étage de la très prisée résidence Matutina Parc et au calme absolu, cet appartement dispose de 94m2 ainsi que d'une magnifique terrasse de 21m2 donnant sud-ouest avec une vue dégagée sur Genève et la verdure.

Ce bien a fait l'objet d'une rénovation totale avec des matériaux de qualité et bénéficie en outre de la climatisation dans toutes les pièces, de stores intérieurs et extérieurs électriques ainsi que de l'arrosage automatique sur la terrasse.

Il est distribué de la façon suivante:
- grand hall d'entrée avec rangements
- un vaste salon/ salle à manger
- une cuisine fermée entièrement équipée 
- un wc visiteurs
- une salle de bain/ douche
- une chambre avec rangements
- une buanderie

Une cave est également inclus. Un box à 200 CHF/mois vient compléter le tout.

Loyer: 3'400 CHF + charges 200 CHF 

Disponible immédiatement.
Adresse
avenue du bouchet 22A
1209 Genève
Sur la carte
CHF 3'400.-
Céline OMNÈS
Agent immobilier
Céline OMNÈS
Contactez le courtier
Aller en haut